Skip to main content

Table Lifter and Other Lifting Equipment

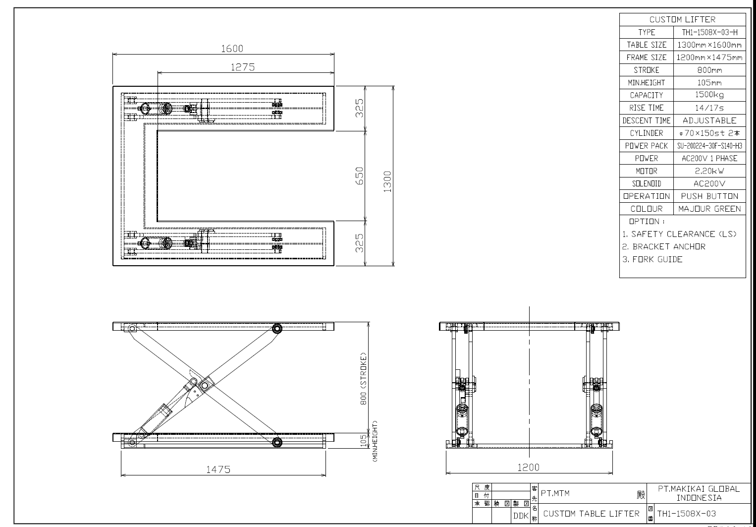
Our Table Lifter is designed to lift and position loads safely and efficiently, reducing manual handling and improving workplace ergonomics..

Comprehensive Automation Services

We specialize in designing and implementing automation solutions that enhance productivity, improve quality, and reduce operational costs. Our expertise spans across various industries including manufacturing, food processing, automotive, and packaging.

Custom Design & Engineering
Precision Fabrication
Assembly & Integration
Testing & Commissioning
Maintenance & Support
Training & Documentation
Custom Machinery System

Benefits of Using Table Lifter

Increased Productivity

Speeds up material handling and positioning, improving overall work efficiency.

Reduces Manual Lifting

Minimizes manual handling, helping operators lift loads safely with less physical effort, Provides stable and controlled lifting to reduce the risk of accidents and injuries.

Enhances Ergonomics

Allows operators to work at an optimal height, reducing fatigue and long-term strain.

Customizable Design

Designed for smooth, steady lifting to ensure load stability during operation, Lifting capacity, table size, and stroke can be tailored to suit specific applications.

Types of Table Lifter We Can Design

Various Table Lifter for various process in your production line

Inspection Automation Icon

Hydraulic Table lifter

Utilizes a hydraulic system to provide smooth lifting motion and high load capacity, making it ideal for heavy-duty applications

More Details
Assembly Automation Icon

Electric Table Lifter

Driven by an electric motor with screw mechanism, offering precise height control and easy, reliable operation, clean area, etc.

More Details
Screw Tightening Icon

Table Lifter with Top Roller

Designed with rollers on the table surface to allow smooth horizontal movement and easy transfer of products.

More Details
Packaging Automation Icon

Table Lifter with Rotary Top Table

Equipped with a rotating top surface to enable easy positioning, orientation, or turning of loads during assembly or processing.

More Details
Material Transfer Icon

Scissor Lift Table

Features a scissor-type mechanism that ensures stable vertical lifting, commonly used in assembly lines and material handling areas.

More Details
Palletizing Robot Icon

Special Lifter

Fully customized design based on specific load capacity, table size, lifting height, top configuration, and application requirements.

More Details
Custom Automation Icon

Other Model as your request

Custom-designed systems for unique manufacturing requirements and specialized processes.

More Details

Our Automation Working Process

1

Consultation & Analysis

We analyze your current processes and identify automation opportunities.

2

Design & Engineering

Create detailed machinery designs and engineering specifications.

3

Fabrication

Precision fabrication using advanced manufacturing techniques.

4

Assembly & Testing

Complete assembly and rigorous testing to ensure quality.

5

Installation & Training

On-site installation and comprehensive operator training.

Want to improve your production line?

Contact us for a free consultation.